Welcome to the neighborhood

For Detroit

Evergreen is a love letter to Detroit’s neighborhoods with our mission to bring more efficient, affordable, and sustainable housing to communities across the city. Each plan we draft is based on a standard 30’x100’ Detroit lot, tailored to all Detroit municipal codes, and use contemporary building science that increases longevity and decreases overall maintenance and running costs.

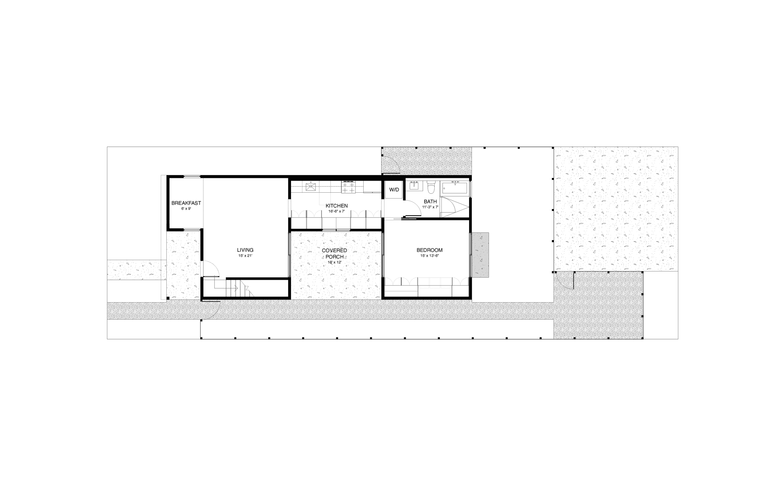
Maximize the Lot

Every plan we draft ensures that our plans are ready to permit and build on the smallest of Detroit’s buildable lots while enhancing customization through a modular design method. Each Evergreen Concept uses a 16’ x 22’ module as the basis of design. This module size ensures a proper fit with permittable set-backs on all sides, per Detroit building code.

Customizable

No one wants a cookie-cutter neighborhood, homes are an expression of personal taste and diversity contributes to more vibrant urban environments. Because of our modular design approach, each model can be reconfigured into a more custom plan to add variations to each base model.

Premium and Long-lasting Finishes

Reducing overall cost of ownership is integral to our models, so we use premium finishes with a proven track record of longevity and sustainability. From thermally modified wood cladding, standing seam metal roofing, to Kohler fixturing, our finishes and fixtures are legacy brands that stand the test of time. Our finish packages are intended to age gracefully over time rather than prioritizing a ‘forever new’ approach to exterior design.