Cedar

The mid-range Evergreen Concept, Cedar, uses a familiar gable-end design approach but interprets it in contemporary finishes, square dormers for high sunlight penetration and additional ceiling height. Cedar also uses a compact footprint that maximizes outdoor space and uses large glazing apertures to enhance the indoor/outdoor experience.

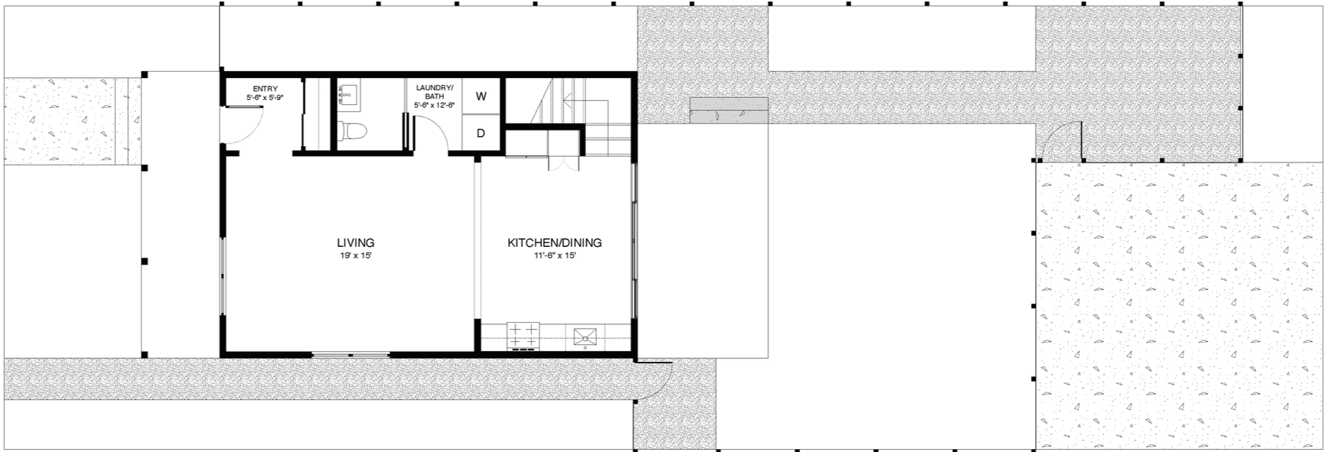
Features & Specifications

  • 1,250 sq.ft.

  • Front porch

  • 2.5 Baths

  • 2 Bedrooms with ensuites

  • Open/flexible main floor plan

  • Spacious kitchen with large sliding doors for easy patio access and direct connection to the backyard

Ground Floor

Second Floor