Hemlock

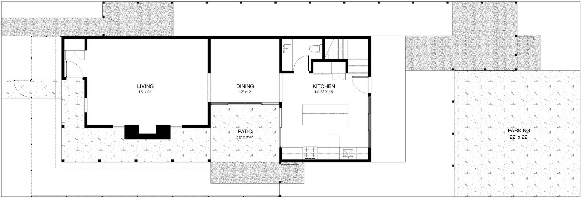
Evergreen’s most stately model utilizes two double-height models joined by a glazed connector that acts as a south-facing light-well and creates a protected courtyard patio space at ground level.

Features & Specifications

  • 1,500 sq.ft.

  • Wrap-around porch

  • Courtyard patio off of dining room and kitchen

  • Modern farmhouse aesthetic with customizable finishes

  • Second floor stacked laundry option or

  • Luxury primary bathroom with wet-room soaking tub and rain shower

  • Flexible plan on second floor can accommodate an open ‘snug’ space or create an office or nursery room

Ground Floor

Second Floor