Juniper

Our most modest model features a single pitch roof with large window apertures to capture sunlight above neighboring eaves and a central, side-oriented covered courtyard for entertaining and light penetration into the primary bedroom and living space.

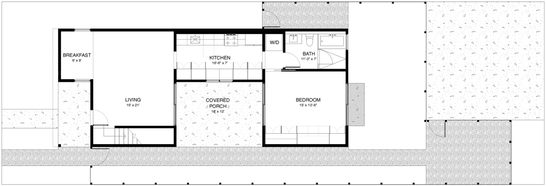
Features & Specifications

  • 1,100 sq.ft.

  • Front porch

  • Breakfast nook

  • Galley kitchen

  • Laundry by primary bedroom

  • Primary bath with vaulted ceilings and wet-room tub/shower

  • Loft office/living space

  • Optional second floor bedroom and bathroom

Ground Floor

Second Floor